Apartment layout - which one?

Indeed. Open kitchen is for poor people. It allows to have a space that feels bigger than it is.

When I renovated our house I also decided for a open Kitchen. If I could choose I would always go for a separated big kitchen next to living/ dinner room. With a big gliding door, which would be mostly open. But this would need 20-30m2 extra space which I dont have.

2 Likes

One thing I’ve never seen yet is a closed kitchen with a wall of glass. Or at least on the upper side. The botton is probably blocked by appliances. I suppose this solution will anger both side (open space and closed kitchen) at the same time :smiley:

Unnecessary rude sentence. You could have written “architect removed walls to make people feel that there is more space bla bla” instead. That I agree.

4 Likes

flip a coin. when the coin is in the air, you’ll kind of feel how you want it to fall.

3 Likes

I read “how you want it to FAIL” :smiley:

Apologies if I hurt someones feelings. That sentence was ment with irony. I thought that by declaring myself one of this „poor“people this would be clear.

My intention was to state, that imho most if the people chose open kitchen for the feeling of big space and that one could also have a big space kitchen with room for breakfast bar, Apéro while cooking etc with a dedicated big enough room.

3 Likes

B. 110% B. :slight_smile:

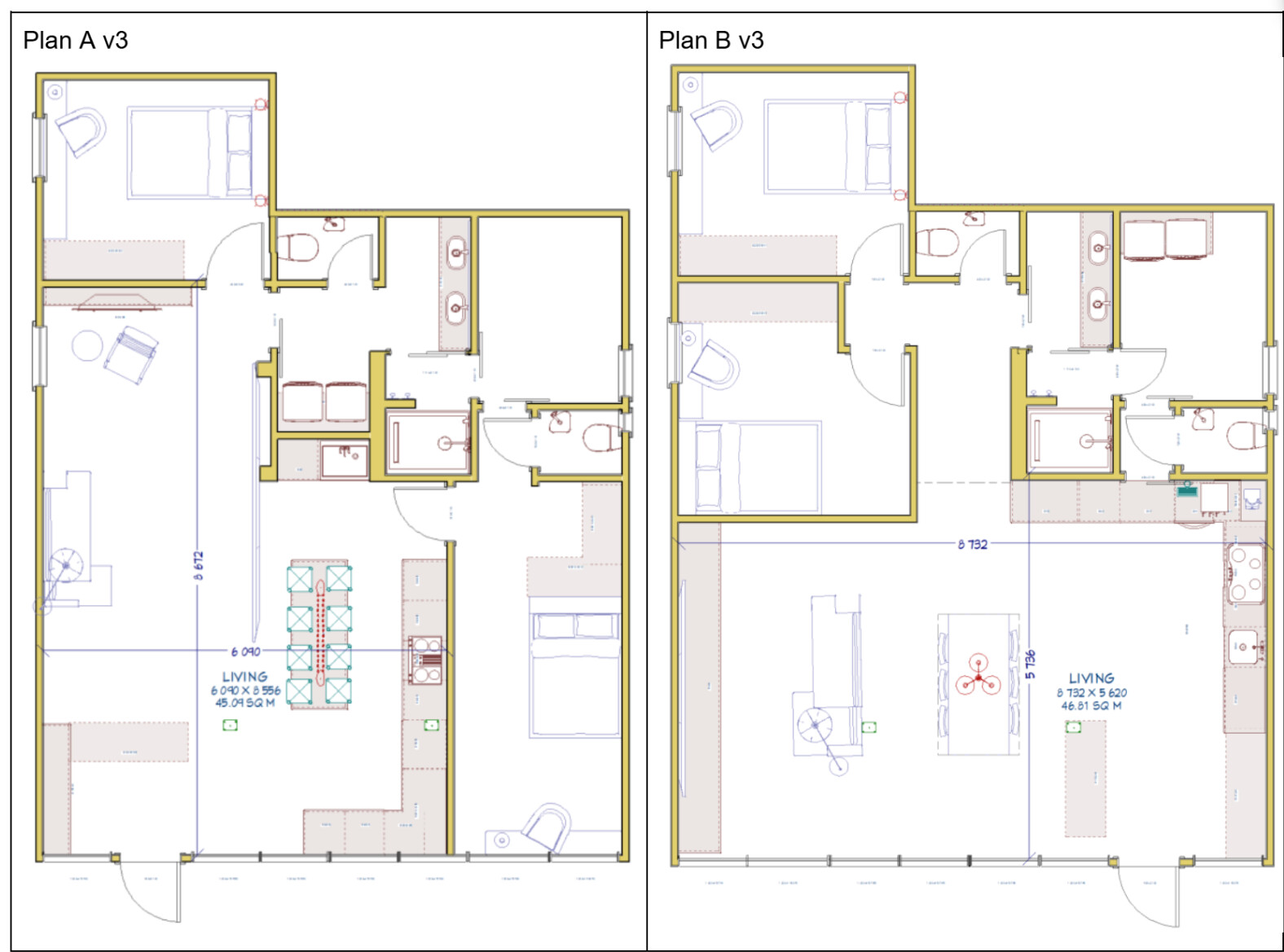
Hey folks, I made some additional tweaks to Plan A and realized both layouts have the same 45 sqm living space. Plus, Plan A’s west-facing window offers a tiny lake view from the kitchen island, while Plan B’s south-facing windows show a small concrete area with a street in front.

Are you still team Plan B, or does this change anything? Let me know!

Cheers everyone,
Jaax

1 Like

Plan A:
Ist this the kitchen sink at the back of the washing machine? I would not want the sink so far away from the stove. Also I like to have free space on both sides of the sink In your L Shape there should be enough space for the sink.
Have you already been to a kitchen planner?

If you change the sink sitiation and place the washing machine in the third room as in plan B you could eliminate this niche and maybe made one (or both) bedrooms a bit bigger

It is too bad that on the side of the lake you have only small windows. There is no change possible?

Did you already consult a specialist? It might be helpful (there are also free online crowd intelligence plattforms specialiced in this). Also it would probably be good to describe your living situation (how many people, homeoffice etc) a bit. Only because I think one layout is the right fit for me doesnt mean it is the same for you, from an objective point of view.

2 Likes

I like B (but I like open floor plans in general), but I don’t understand the second toilet on the right?
Is there an entrance from the kitchen? But there appears to be a cabinet in front of it.
Otherwise, do you really need to go through the bathroom plus washroom? Who is going to use it?
As someone else said, 1 toilet can be enough for 2 bedrooms, so a second toilet would usually be for guests. But it sounds wildly impractical for guests to go there.

A does it better, but then you have this weird small room in the top right that is also hard to reach. The sink as discussed is too far, maybe put a pantry there instead? Also, what’s this niche next to the sink/washers in the living room, what do you plan to put there?

Maybe you can try fitting the second bedroom in the top right?

:saluting_face: you have a lake view in the west and concrete space/street on the south and someone chose to put in a window front towards the street and two tiny windows towards the lake??

2 Likes

Why don’t you list the requirements and restrictions (measures, installations), and the community can then try to come up with better layouts? :smiley:

1 Like

That’s a good idea from dbu.

I’m beginning to think the layout of the apartment is a result of fixed windows and bathrooms by the builder (who should be ashamed really if that’s the case).

That apartment seems to be lacking windows big time. 3 windows and a window front for what seems to be 90-100 sqm…
I’ll still give my opinion:

  • A living room of that size (any size really imo) should benefit from windows on at least two sides unless the view from the window front is exceptionally amazing and a focus point of the apartment, and even then. Solutions: Have the glass front wrap around the west corner to open the view to the lake. In the right option put an additional window into the kitchen on top of that.
  • Double windows instead of what seems to be single in the bedrooms.
  • In a flat that size, you should be able to enjoy at least a window in the bathroom with the shower for ventilation.

If the kitchen has to be completely open, you can always block the direct view on it with a big island/bar etc. like you did in one of your plans.
My preferred option is semi open towards the living space with a hole (like a window or I’ve seen pretty semi circles) in the connecting wall.

Out of interest: Is that a balcony in front of that glass front?

B - the open space is much easier to customize. Also this assumes you’ve taken into account the sun path too. (bedrooms either north or east side).